VIT.archi

東京都練馬区の環境建築家
光と温熱、空気、音、手触りに配慮し
「心地良いすまい」を丁寧に設計します
一級建築士事務所 株式会社VIT

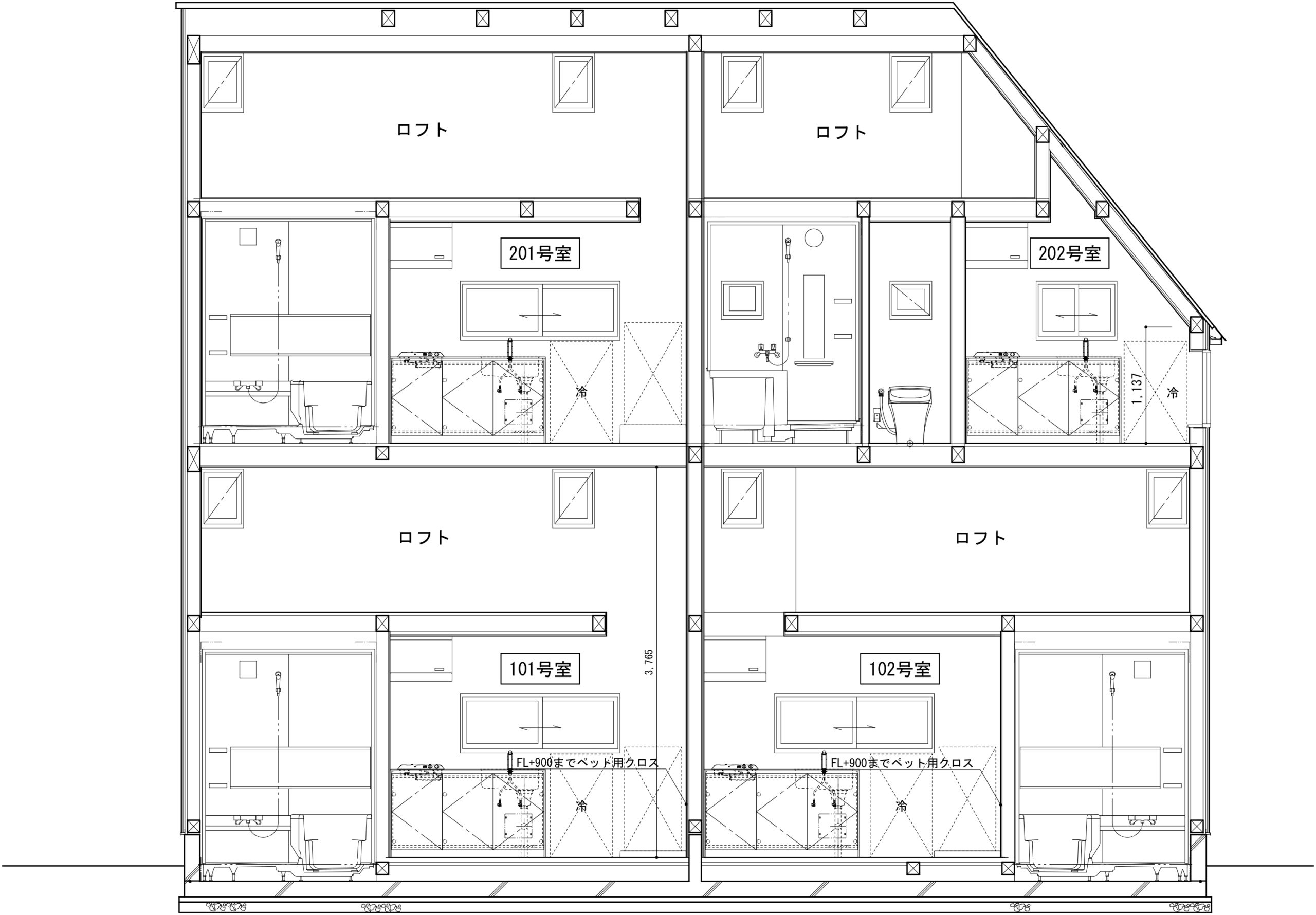
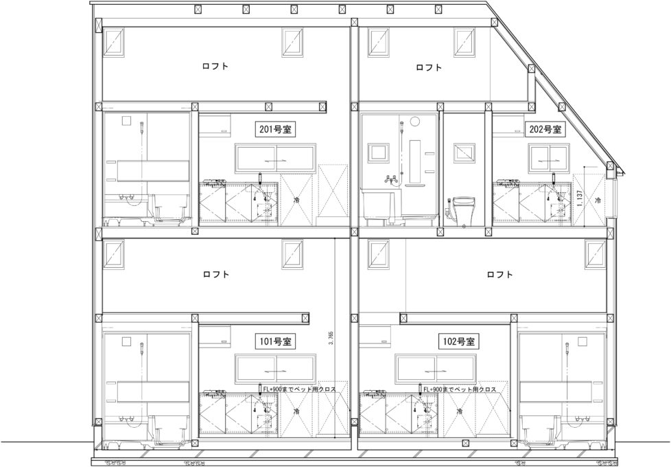
太子堂アパートメント断面図

  • HOME
  • NEWS
  • WORKS
    • _施設建築
    • _工場・倉庫
    • _商業施設
    • _集合住宅
    • _住宅
    • _コンペ・Project
  • ABOUT
  • COLUMN
  • BLOG
© 2014 VIT.archi.