「ワンルームマンションを再定義すること」
それがこの建築のテーマです。
この物件の場合は比較的小規模だったので、ワンルームの規制はかかりませんでしたが、木造三階建ての共同住宅なので防火上、様々な制約がかかります。こうした諸問題をクリアーしつつ、いかに収益物件としての役目を果たすか、とても難しいタイプの建物だと思います。
収益性を考えると、大胆すぎるデザインはしにくいです。スタンダードな部分を外れてしまうと、入居する人の範囲が限られてしまいます。かといって普通すぎると、供給過剰気味の市場に対して差別化を図ることができません。また、時間が経過した後も空室が出にくいようにするために、流行に左右されにくいデザインにする必要があります。
仕様を豪華にすると、建築費用が高くなりすぎて収益物件としての価値が減少してしまいます。家賃を高くしてカバーすることもできますが、相場も考慮しないといけません。
個人のお客さんが老後に備えるために建てるわけですから、バランス感覚が大事なビルディングタイプだと思います。
良くあるタイプのワンルームの構成要素を見直すことから始めました。先述した内容を踏まえつつも、既に受け入れられている要素を使ってワンルームをおもしろく改良できないだろうか・・・?一人暮らしというライフスタイルの可能性を広げたり、ワンルームに新しい快適さを作り出したいと考えました。

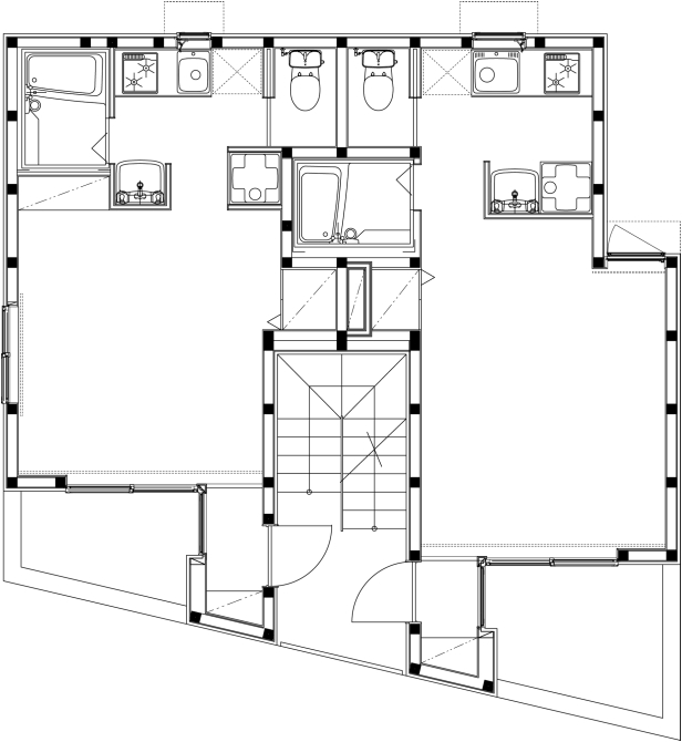
ワンルームに良くある構成ですが、玄関と水回りは大抵セットになって配置されています。
玄関は北側に配置されて一年中暗いので、照明無しでは成り立ちません。環境が居室と違いすぎるので、「水回り+玄関」と「居室」は分断されています。
バルコニーはどうでしょうか?物を干すとか、エアコンの室外機置き場、あるいはゴミ置き場になっていないでしょうか?また、プライバシーが気になるので、一日中カーテンが閉められていることもあります。どれも生活に欠かせない要素ですが、生活空間としては居室と切り離された存在になっています。このように互いに断ち切られた関係性に一石を投じたいと思いました。
いろいろ検討している中で、デッドスペースになっている玄関とバルコニーをくっつけたら・・・思わぬ広がりが生まれることに気づきました.

家に帰って玄関を開けると玄関とバルコニー、居室が一体化した空間が広がります。バルコニーにはエアコンの室外機は置きませんでした。屋外コンセント、屋外水栓もつけましたので広々といろいろな用途に使えるようになっています。
室内は伸びやかな広がりを獲得しました。反対側から光も差し込んで、光と風が通り抜ける空間となりました。
ちょうどお昼ぐらいの時間帯です。北側の窓と、バルコニー側からの光と相まって、日中は均質な柔らかい光に満ちた空間になります。照明をつけなくても一日中明るいです。北側の窓は目の高さぐらいに設定しました。将来的に隣地に大きな建物が建っても、室内で座っていればカーテンが無しでプライバシーを確保できるように、と考えてのことです。高いところにある窓というのは効率よく室内に光を入れることができます。
このワンルームのもう一つのポイントはバルコニーを南向きに設定しなかったことです。そうすることもプランニング的には可能だったのですが、ワンルームというのは当然、独身者が住む確率が高いです。昼間は仕事に出ているので、昼間は誰もいません。ということはバルコニーを南向きにするのではなく、朝と夕方に室内に光が入る方が喜ばれたりします。
バルコニーが1.5m跳ねだしていて敷地が道路に対して斜めなので、鋭角のシルエットが生まれました。
夜になると、昼間とは違う空間の一体感が出てきます。将来的なリフォーム時にウッドデッキを敷けばバリアフリーの床として連続的に使えます。
バルコニーの手摺りの内側の壁に光が当たって、室内と外部が連続したような空間が生まれます。手摺りを高めに設定してあるので、季節の良い時期にはバルコニーで本を読んだり、お酒を飲んだりして、快適に過ごせると思います。室内だけでなく、外部でも過ごせるとしたら、今までのワンルームとは生活の質が変わります。バルコニーには水栓も用意したので、ちょっとしたガーデニングもできます。
この物件は駅から近いこともあって、おかげさまで竣工前の不動産告知後、あっという間に予約率300%を超える反響となりました。比較的若い方達が入居されたようですが、こういう提案が受け入れられて良かったなと思います。
Photo : Ishii Atelier











