カパロール(旧・アルセコ)3(45分準耐火構造 認定試験)
900℃の炎に45分さらされ、壊れながら成立する準耐火構造。カパロール外壁の認定試験を通して、制度の思想と素材の本質を読み解きます。
900℃の炎に45分さらされ、壊れながら成立する準耐火構造。カパロール外壁の認定試験を通して、制度の思想と素材の本質を読み解きます。
川は、道路のように曲がってビルに遮られることなく、遠くまで視界が広がるインフラでもあります。両岸に並木が連なる場所では、橋の上は意外なほど自然に囲まれた空間になります。密集した都心の橋に、「線」ではなく「面的な広がり」を持たせました。
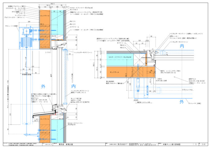
「佐藤の窓」は断熱性能が高い世界最高クラスのサッシですが、生活するうえではブラインドやカーテンも必要です。「佐藤の窓」とハニカムの最適な納まりを実例で示します。
練馬区役所で開催された市民団体の会に参加。賃貸住宅の断熱化がなぜ進まないのか、開発・投資・販売・宣伝の構造から読み解きます。
発刊に当たって開催された講習会を終え、詳細に読み込みを行いました。木造住宅を設計するうえで避けて通れない技術書籍ですが、釘配列諸定数による詳細計算についてのメモです。耐力壁、そして屋根・床構面の構成に影響してきます。
外付けブラインドを設置する日射遮蔽の意義を考えるとともに、室内の明るさや雰囲気に及ぼす効果についてみていきます。また、採用する際の注意点についても解説します。
夜の風景を通して、素材や音、照明の考え方に触れてみます。
東京都の練馬区上石神井に「事務所兼用住宅」を建てました。 緑道沿いの良好な住環境の中、暖かく涼しい住まいになりました。
室内に入る外気は日々変動します。AQIデータと実測をもとに、フィルター性能と圧損、暮らし方のバランスから換気を考えます。
新建ハウジング 2024年10月20日号(vol.1014) に「素敬の家」が掲載されました。