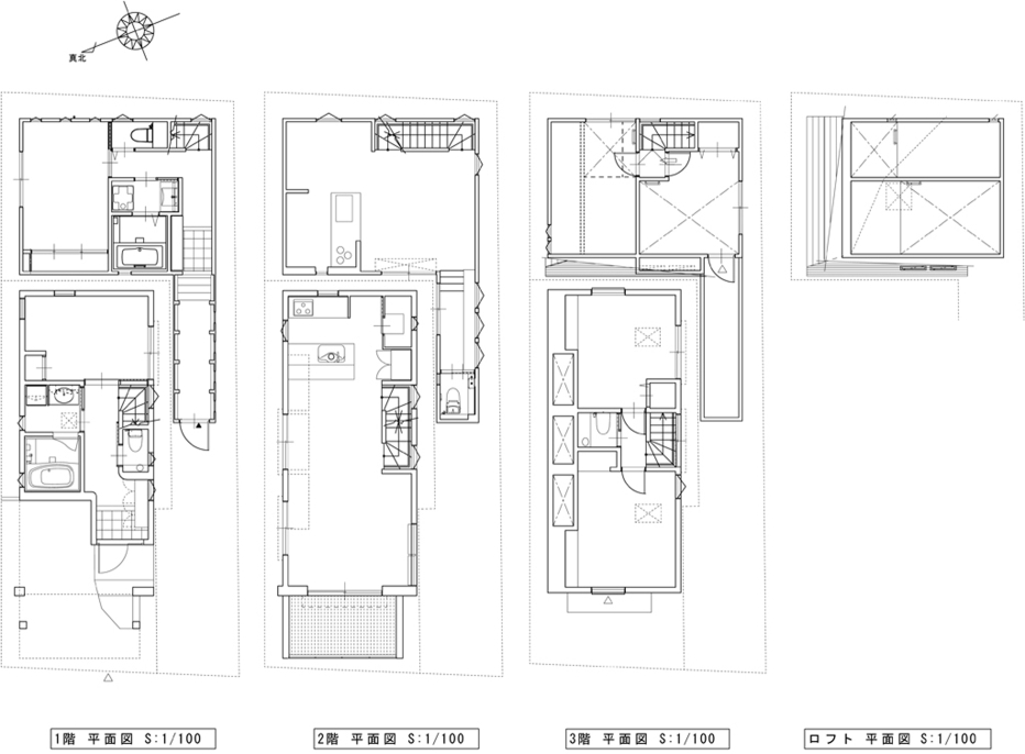
品川区旗の台 分譲住宅B号棟 [2011年]
いきなり夜の写真からですが、旗竿状の敷地の奥にB号棟が建っています。竿に相当する部分は細長いので、通常は駐輪場とか植栽を植えたりして、当然建物以外の利用が多くなるわけですが、今回は竿の部分をうまく使って、面白い空間にしてみよう、と思いました。 玄関開けるといきなりギャラリースペースです。長さ4.5mの突出部をもたせ、列柱の並ぶギャラリーとしました。天井がガシャガシャっとなっていますが、これはデコレーションではなく「方づえ」という構造体です。
竿の部分に細長い廊下のようなスペースがわかりますか?
逆にギャラリーから玄関を見たところ。日中は小窓からほんのり採光がとれます。
玄関から入っていったん半地下に潜ってから2階に上がる構成です。2階に上がるとLDKがあり、先ほどのギャラリースペースの上階にはスタディスペースを設けました。購入者であるご主人はこのスペースが気に入って、この家に決められたそうです。ギャラリースペースのデザインなど、重厚な感じがご夫婦でお気に入りだそうです。こういう話は嬉しいですよね!
ご引越後、伺った際に中を見せていただいたのですが、大変センスのあるご夫婦で、とっても素敵な感じのインテリアで過ごされていました。お載せできないのが残念。
これは計画当初から意識していたのですが、キッチンスペースからギャラリースペースが見通せるようにしました。窓の奥に見えている壁がA号棟の壁です。通常家と家の境は、おとなりの視線を気にしてカーテンやブラインドで仕切ることが多いのですが、窓と窓の関係を慎重に配置しているので、お隣が気にならないはずです。中央の窓の奥に見えている小窓は、A号棟のパントリーの窓で、比較的高い位置に付いているので覗き込まれることがない位置に調整しています。
キッチンはTOYO-KITCHENのBAYです。お客様が施工途中で購入されて、急遽このキッチンを変更されました。ショールームにも一緒に足を運び、様々な思いのこもったキッチンです。ここまでくると家のつくりといい、設備といい、作り付けの家具といい、もう注文住宅といってもいいぐらいの感じです。
3階は子供部屋。こちらはロフト付きです。半地下の3階建てなので、周りが2階建てだと、3階の窓はお隣の屋根の上に出てきます。
ロフトは天井高さが1.4mまでしか取れないのですが、かがめばなんとか移動はできます。いろんなことに使えそうですよね。
注文住宅は創作活動が出発点なのに対して、分譲建売は経済活動が出発点なので両者は咬み合わない部分が出てくるわけですが、分譲建売でこのような住宅ができて、よかったなと思いました。















