「佐藤の窓」は香川県丸亀市の大丸工業さんが制作されている木製サッシです。
日射取得率、断熱性、気密性ともに世界最高クラスの性能を誇ります。
中空層が2層あるトリプルガラスで、ガラス部分の層厚は48mmあります。真冬の早朝であっても結露しません。(6地域の場合)
トリプルガラスの時点で断熱性能は高いわけですが、もう一つの特徴が、ヒートブリッジ(熱橋)を最小化する作り。
サッシ枠に対して外壁材及び断熱材が覆いかぶさるように納まるので、サッシ枠から熱が逃げるのを防ぐことができるのです。
これが佐藤の窓が高性能である、もう一つの理由です。
左がAPW430、右が佐藤の窓、
サッシ枠がないかのように見えるデザイン性も気に入っています。
しかし、いくら高性能とはいえ、窓単体では成立しないことも事実。
生活していくうえでは夜間、外部からの視線を防ぐために、カーテンやブラインドなど、プライバシー確保も必要になります。
「素敬の家」では窓全てに、ハニカム・サーモスクリーンを組み合わせました。開口部の断熱性能を更に高めることができ、性能が比較的低いサッシでも、最新の窓に肉薄するような性能へと向上させることが可能です。ハニカムとはその名の通り、ポリエステル不織布を蜂の巣状に構成し、空気の複層によって断熱性が上がるわけです。
トリプルガラスの樹脂サッシといえど、ハニカムを組み込むと、外気温と室内条件によっては、わずかながら結露を生じます。ハニカム・サーモスクリーンはポリエステル不織布でできているので、湿気は室内から通り超えてガラス側に移動し、その空気が冷やされて結露します。しかし「佐藤の窓」はその高い断熱性のお陰でハニカムを入れても結露しません。
というわけで、「佐藤の窓」とハニカム・サーモスクリーンを組み合わせると、結露もせず、断熱性能も更に高まった、理想的な窓環境を作ることができます。
「佐藤の窓」のドレーキップを見ていきます。
ドレーキップ窓とは下記のように、2種類の開き方が可能です。
| ドイツ語 | 意味 | 使い方 |
|---|---|---|
| Dreh(ドレー) | 回す・回転 | 内開きの開閉 |
| Kipp(キップ) | 傾ける・倒す | 内倒し・換気用 |
ハンドルを上に向けると内倒し窓になり、夜間に視線を遮ったまま、窓を開け締めできます。
窓を斜めに傾けても、ハニカムが手前に垂れてこないように、ディテールを仕込みました。
ハニカムサーモスクリーンは例えば高さが90cmのとき、下の支えがないと94.5cmほどの長さになります。つまり伸びるわけです。
ですから、ハニカムをそのまま設置した場合「佐藤の窓」を内倒しにすると、手前にだらりと垂れて使い勝手も見た目も悪いのです。
そこでハニカム・サーモスクリーンの「断熱レールオプション仕様」を使う前提で、佐藤の窓の左右の枠にしゃくり溝を入れていただき、アクリル板を入れました。
(注:この場合、ハニカムに標準で付属している断熱レールは廃棄することになります。)
ハニカムの下枠は少し遊びがあって、こういう端部の隙間が下から見えることもあります。
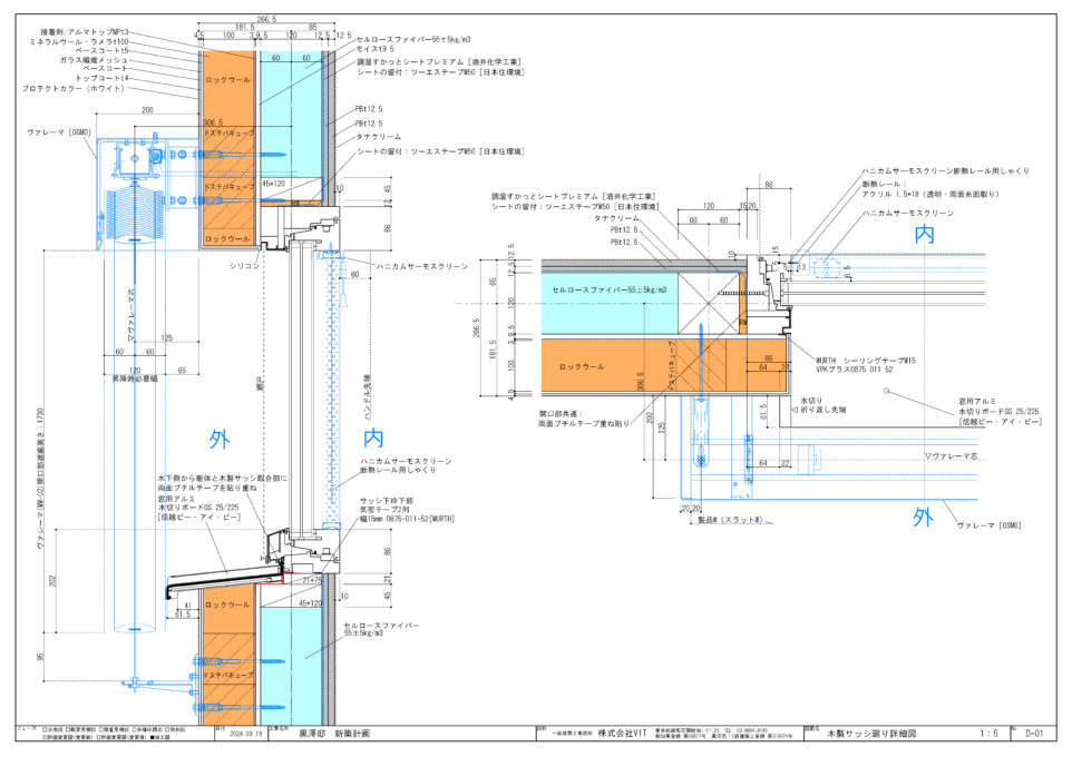
ちなみに詳細図はこんな感じになっています。
VIT 素敬の家 窓廻り詳細図 ← PDF
サッシの枠部分の外側に断熱材が被さるように納まっているのがわかると思います。
「佐藤の窓」とハニカムを組み合わせたいとお考えの方は、ぜひご参考になさってください。
※アクリルをはめ込むのに接着剤は不要です。竣工から1年半経ちましたが不具合は無く、毎日開け締めしても緩みはありません。
※2025年にハニカムの布の改定があったそうで、多少肉厚になったため、畳み代が増えたようです。採用の際は改めて寸法を確認してください。重量も重くなったようです。
※透湿性の低い布だったら樹脂サッシでも結露が減るかもしれません。また、吸音性など総合的なバージョンアップが期待されるところです。SEIKIさん是非、ご検討頂ければと。
まとめ
高性能な窓を選んだはずなのに、
「思っていた感じと違う」
という声を耳にすることがあります。
その多くは、製品そのものや性能の問題だけではなく、納まりや使い方、あるいは窓の配置や大きさが、日々の暮らしにうまく噛み合っていないことが原因です。
窓は、
- 開け閉めして新鮮空気の取り込み、室温の調節
- 視線を遮る←→開く
- 光や日射熱を取り込む
といった、ごく当たり前の日常の行為と強く結びついています。
だからこそ、窓を性能や数字だけで評価するのではなく、その家での暮らし方に無理がないか、将来的に使いづらさやリスクが生じないかを含めて、総合的に判断していく必要があります。
もし計画中のお住まいで窓まわりに少しでも不安を感じる点があれば、早い段階から様々な角度で確認されることをお勧めします。結果的に後悔の少ない住まいにつながります。
補足
ちなみに、、、
内部にアルミ箔が貼られており、光を一切通しません。
寝室はこれを入れました。
光を通さないということは、朝日が室内に入らないだけではなく、室内側の明かりが外に漏れずに、すべて室内側に反射するということでもあります。ですから少ない照明でも明るく感じられます。
採光タイプだと、光を程よく透過して、室内は行灯の中にいるような柔らかい光空間になります。

窓廻りの収まりに絡む商品
佐藤の窓
ハニカム・サーモスクリーン
カパロール(旧・アルセコ) ロックウール断熱材、外装システム
ヴァレーマ(外付けブラインド)
関連記事
こちらもあわせてお読みください。













